Política sobre cookies

Utilizamos cookies [Política de Cookies] para asegurar que damos la mejor experiencia al usuario en nuestro sitio web. Si continúa utilizando este sitio asumiremos que está de acuerdo.

Configurar cookies

Sala de Duelos en Molinos

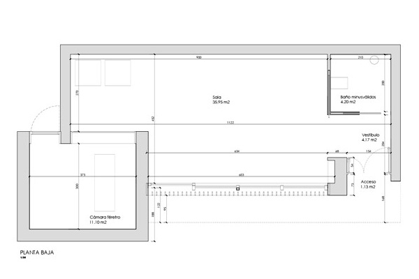
PROYECTO DE SALA DE DUELOS EN MOLINOS (Teruel) El Ayuntamiento de Molinos requiere la ejecución de una sala de duelos, aumentando así la necesidad que ello conlleva con el acondicionamiento de las 2 parcelas que se ocuparán, con zona verde y aparcamiento. El proyecto propuesto se diseña con una forma rectangular y otra cuadrada, como si fueran dos cubos independientes, conectando ambos a través de un ventanal fijo, de manera que quede dividido en: vestíbulo, aseo adaptado a minusválidos, sala de duelo y cámara del féretro.

About this project

Tipología
Equipamiento

Situación
Molinos

Cliente
Ayuntamiento de Molinos

Fecha
2018

Superficie
70,27 m²