Política sobre cookies

Utilizamos cookies [Política de Cookies] para asegurar que damos la mejor experiencia al usuario en nuestro sitio web. Si continúa utilizando este sitio asumiremos que está de acuerdo.

Configurar cookies

Porcelanosa Braehead en Glasgow Edificación

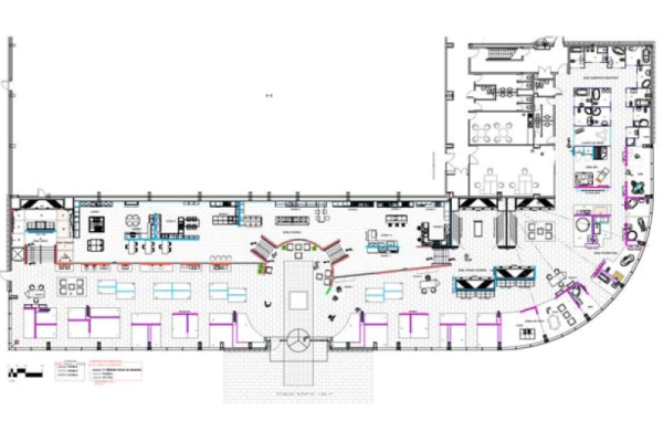
EXPOSICIÓN Y TIENDA COMERCIAL DE PORCELANOSA EN BRAEHEAD (Glasgow) Udda se ha encargado del diseño arquitectónico en fase de anteproyecto y de la supervisión de la dirección de obra por parte del cliente, realizando las funciones de «project manager». Se ha participado en la consecución de las preceptivas licencias de obra y actividad. El programa desarrollado, aportado por el cliente, se desarrolla en un almacén (centro logístico para Escocia) de 4.790 m², oficinas principales de la región de 2.136 m² y una zona de exposición de 1.545 m². Se trata de un edificio de volúmenes sencillos, donde sobresale el almacén debido a la necesidad de instalación de un racking de 12 metros de altura. Las oficinas se desarrollan en tres alturas, conectadas mediante un atrio principal. Colaboradores: Macman Chartered Architects (arquitectos) y Neison Binnie Mckenzie (consultora)

About this project

Tipología
Edificación

Situación
Glasgow

Cliente
Porcelanosa UK

Fecha
2005

Superficie
8.471 m²