Política sobre cookies

Utilizamos cookies [Política de Cookies] para asegurar que damos la mejor experiencia al usuario en nuestro sitio web. Si continúa utilizando este sitio asumiremos que está de acuerdo.

Configurar cookies

Lovisa C.C. Parquesur en Leganés

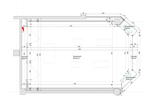
PROYECTO DE ACONDICIONAMIENTO DE UN LOCAL EN CENTRO COMERCIAL PARQUESUR (Leganés) Se trata de un local destinado a la venta de joyería, bisutería y complementos, situado en la planta baja del Centro Comercial Parquesur, en el municipio madrileño de Leganés. Con casi 50 m², en este local cuadrangular se instalan dos cristaleras en los laterales abiertos.

About this project

Tipología
Retail

Situación
Leganés

Cliente
Lovisa

Fecha
2018

Superficie
49,89 m²