Política sobre cookies

Utilizamos cookies [Política de Cookies] para asegurar que damos la mejor experiencia al usuario en nuestro sitio web. Si continúa utilizando este sitio asumiremos que está de acuerdo.

Configurar cookies

Lovisa C.C. La Gavia en Madrid

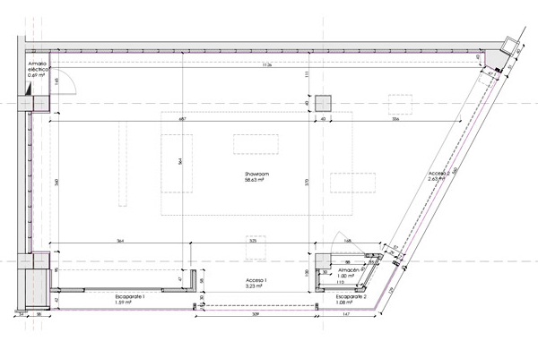
PROYECTO DE ACONDICIONAMIENTO DE UN LOCAL EN CENTRO COMERCIAL LA GAVIA (Madrid) Lovisa Complementos España encarga a udda el proyecto de acondicionamiento de un local destinado a la venta de joyería, bisutería y complementos, situado en la planta baja del Centro Comercial La Gavia, en Madrid.

About this project

Tipología
Retail

Situación
Madrid

Cliente
Lovisa

Fecha
2018

Superficie
75,31 m²