Política sobre cookies

Utilizamos cookies [Política de Cookies] para asegurar que damos la mejor experiencia al usuario en nuestro sitio web. Si continúa utilizando este sitio asumiremos que está de acuerdo.

Configurar cookies

Havaianas Tenerife

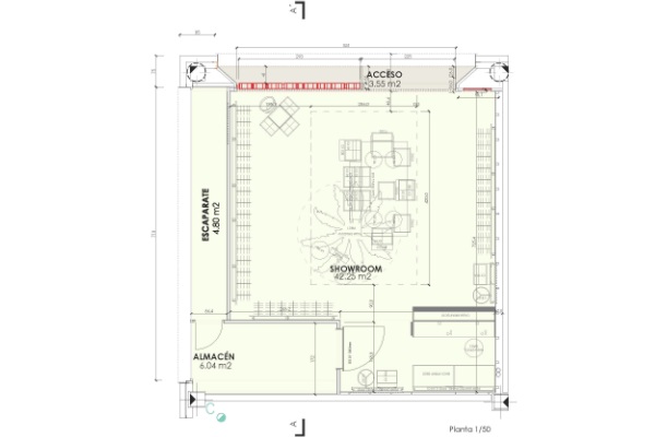
PROYECTO DE ACONDICIONAMIENTO INTEGRAL DE ESPACIOS INTERIORES Y FACHADA PARA EQUIPAMIENTO COMERCIAL EN ADEJE (TENERIFE) Udda Arquitectura ha desarrollado este proyecto integral de acondicionamiento ubicado en el corazón del Centro Comercial Siam Mall en Costa Adeje, Santa Cruz de Tenerife. El proyecto integral se realiza en una superficie de 60 m² aproximadamente, incluyendo, además del desarrollo interior, el tratamiento exterior en fachada. Gracias al continuo y beneficioso feedback con el cliente se llegaron a unos excelentes resultados en cuanto a acabados, detalles, distribución, mobiliario propio y diseño; todos ellos acordes a la línea de marca para la satisfacción final del cliente

About this project

Tipología
Retail

Situación
Adeje (Tenerife)

Cliente
Havaianas

Fecha
Marzo 2015

Superficie
60 m²