Política sobre cookies

Utilizamos cookies [Política de Cookies] para asegurar que damos la mejor experiencia al usuario en nuestro sitio web. Si continúa utilizando este sitio asumiremos que está de acuerdo.

Configurar cookies

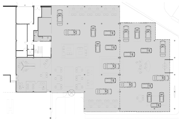
Espacio Comercial Mercedes Benz

PROYECTO DE ACONDICIONAMIENTO INTEGRAL DE ESPACIOS INTERIORES Y AMPLIACIÓN DE EXPOSICIÓN DE AUTOMÓVILES EN ZARAGOZA El proyecto hace referencia a la ampliación de un local para exposición de vehículos como respuesta a las necesidades del cliente y el acondicionamiento interior de la zona existente. El local se desarrolla en planta baja y se amplía 422 m². El proyecto exigía la colaboración con otros profesionales para su éxito. Entre estas colaboraciones se encuentran ingenieros estructuristas, ingenieros para el cálculo de instalaciones, etc…

About this project

Tipología
Equipamiento comercial

Situación
Zaragoza

Cliente
Ágreda Automóvil (Mercedes Benz)

Fecha
Noviembre 2016

Superficie
422 m²