Política sobre cookies

Utilizamos cookies [Política de Cookies] para asegurar que damos la mejor experiencia al usuario en nuestro sitio web. Si continúa utilizando este sitio asumiremos que está de acuerdo.

Configurar cookies

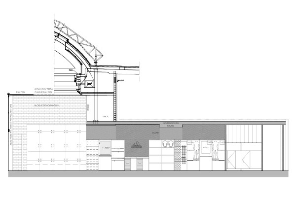
Adidas C.C. Río 2 en Madrid

PROYECTO MÁSTER DE ACONDICIONAMIENTO INTEGRAL DE ESPACIOS INTERIORES Y ESCAPARATES PARA EQUIPAMIENTO COMERCIAL EN CENTRO COMERCIAL PLAZA RÍO 2 EN MADRID Udda se encarga del proyecto máster para este local irregular de Adidas con 338,31 m² que cuenta con una fachada de más de 17 metros y se encuentra en el Centro Comercial Plaza Río 2 de Madrid. El espacio se divide en sala de ventas y back of house, que incluye almacén, oficina, aseos y otros espacios para el personal.

About this project

Tipología
Retail

Situación
Madrid

Cliente
Adidas

Fecha
2017

Superficie
338,31 m²